Osobní odběr zboží: Severní 276, Jinočany - Kontakt
Máte dotaz? +420 311 257 435
Optický detektor kouře do kanálu, potrubí a ventilačních systémů s alarmem a smyčkou pro připojení k ústředně. Více informací
Na objednávku
| Krytí IP | IP 54 |
| Princip detekce | Optický |
| Teplota | -20...60 °C |
| Hmotnost | 0.50 kg |
Katalogový list eng ke stažení
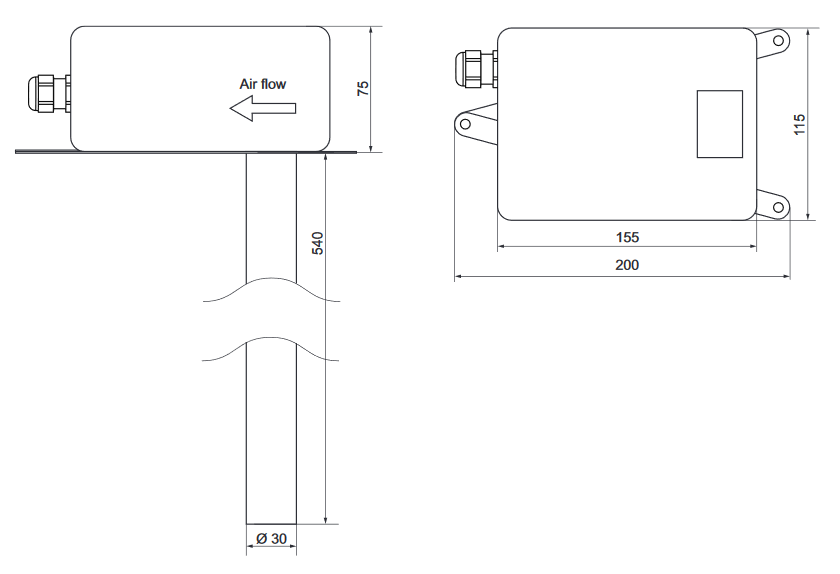
Stáhnout PDFOptické detektory značky Regin řady SDD jsou vhodné pro umístění do kanálu, potrubí a ventilačních systémů. Splňují veškeré požadavky protipožární poplachové instalace. Disponují alarmem pro včasné upozornění na kouř. Detektory jsou zapojitelné do ústředny ABV.... K jedné ústředně je možné zapojit více detektorů.
Detektory optického typu reagují na viditelné částice kouře. Fungují na principu odrazu světla od částic kouře vstupujících do komory detektoru. Infračervená LED dioda ozařuje prostor před sebou, kudy proudí vzduch. V případě vstupu kouřových částic je světlo odaženo a rozptýleno po komoře, kde ho zaznamená fototranzistor, který následné sustí alarm. Optické detektory jsou vhodné pro doutnající požáry. Více se o detektorech kouře můžete dozvědět v našem článku.
K detektorům je dodávána Venturiho trubice v délce 540 mm, kterou lze zkrátit na požadovanou délku. Průhledové okénko na krytu detektoru umožňuje výhled na indikátor průtoku a výstražnou červenou LED signalizaci. Ta se rozsvítí v případě požárního poplachu.

Na Vaše dotazy k produktům odpovídáme co nejrychleji, obvykle do 24 hodin.
Nenašli jste to, co jste chtěli vědět?