Osobní odběr zboží: Severní 276, Jinočany - Kontakt
Máte dotaz? +420 311 257 435
Ionizační detektor kouře do kanálu, potrubí a ventilačních systémů s alarmem a relé. Více informací
Tento produkt již není v nabídce, protože byl nahrazen novým modelem.
Zobrazit nový model| Krytí IP | IP 54 |
| Princip detekce | Ionizační |
| Teplota | -20...60 °C |
| Hmotnost | 0.50 kg |
Katalogový list eng ke stažení
Stáhnout PDFIonizační detektory značky Regin řady SDD jsou vhodné pro umístění do kanálu, potrubí a ventilačních systémů. Splňují veškeré požadavky protipožární poplachové instalace. Disponují alarmem pro včasné upozornění na kouř. Detektory s relé se nepřipojují k ústředně, ale umožňují detektoru samostatně spustit poplašné hlášení, anižby byl připojen k řídící jednotce.
Detektory ionizačního typu reagují na viditelné i neviditelné částice kouře. Fungují na principu dvou komor, z nichž jedna je uzavřená a slouží jako referenční a druhá je otevřená a přijímá částice z okolního vzduchu. Při vstupu částic kouře do otevřené komory se změní hodnoty oproti referenční komoře a spustí se poplach. Ionizační detektory jsou vhodné pro rychle hořící ohně. Více se o detektorech kouře můžete dozvědět v našem článku.
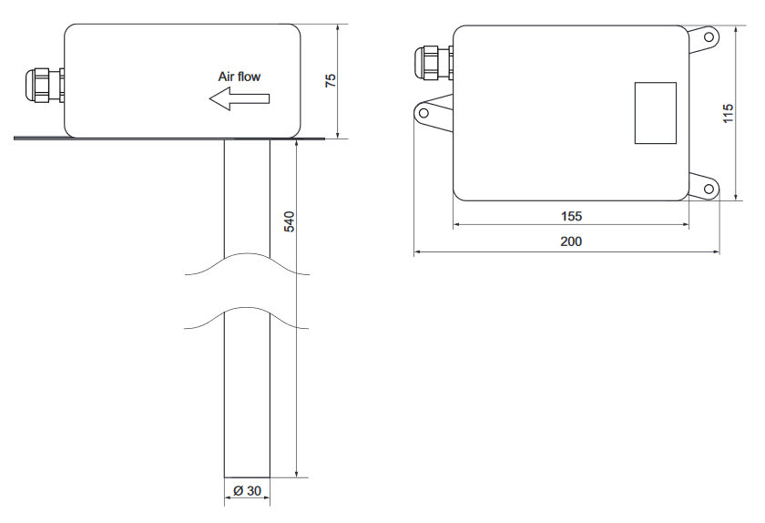
K detektorům je dodávána Venturiho trubice v délce 540 mm, kterou lze zkrátit na požadovanou délku. Průhledové okénko na krytu detektoru umožňuje výhled na indikátor průtoku a výstražnou červenou LED signalizaci. Ta se rozsvítí v případě požárního poplachu.

Na Vaše dotazy k produktům odpovídáme co nejrychleji, obvykle do 24 hodin.
Nenašli jste to, co jste chtěli vědět?