Osobní odběr zboží: Severní 276, Jinočany - Kontakt
Máte dotaz? +420 311 257 435
Zařízení na přečerpávání odpadní vody Wilo Drainlift SANI-M. Dopravní výška 16 m, napájení 400 VAC, pro agresivní média. Více informací
Na objednávku
| Dopravní výška čerpadla | 16 m |
| Maximální teplota | 40 °C |
| Napájení | 400 VAC |
| Objem | 99 l |
| Počet vstupů | 1 |
| Průtok čerpadla | 35 m3/h |
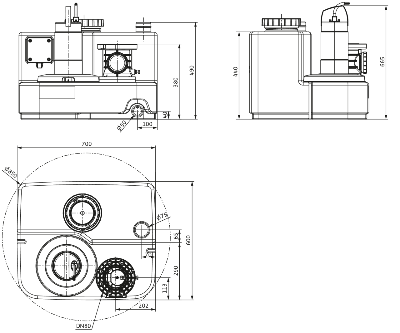
| Rozměr | 665x700x600 |
| Hmotnost | 53.00 kg |
Návod ke stažení
Stáhnout PDFKatalogový list ke stažení
Stáhnout PDFPřečerpávací zařízení Wilo Drainlift SANI je určené k přečerpávání odpadní vody s obsahem fekálií v případech, kdy ji není možné odvádět samospádem do kanalizace, nebo v případech odvodňování odolného proti zpětnému vzdutí, je-li odtokové místo pod hladinou zpětného vzdutí. Zařízení je kompaktní a okamžitě připravené k zapojení a uvedení do provozu.
Sběrná nádrž je vzduchotěsná i vodotěsná s šikmým nátokovým sběrným prostorem. Díky průhlednému víku a čistícímu otvoru na zpětné klapce jsou údržba a čištění snadné. Vysokou spolehlivost zajišťuje nerezavějící materiál z technických plastů a nerez oceli. Velkou předností zařízení je vysoký průtok, vysoký spínací objem, termická ochrana motoru a alarm. Úroveň hladiny v nádrži se měří analogovým výstupním signálem 4...20 mA.
Přečerpávací stanici automaticky řídí spínací přístroj Wilo-Control EC-L. Ovládá se pomocí displeje a disponuje rozhraním ModBus pro vzdálenou komunikaci, poruchová hlášení tak mohou být přenášena na dálku či přes beznapěťový kontakt. V případě poruchy se zapne autonomní alarm. Spínací přístroj umožňuje nastavit dobu doběhu. Napájen je 1,5m kabelem se zástrčkou.
Drainlift SANI-M představuje skvělou volbu pro rodinné domky a dvojdomky s nekontrolovaným odběrem odpadní vody. Motor umožňuje využívání volitelných režimů Nepřetržitý chod a Přerušovaný provoz.
Tato verze je vhodná pro čerpání agresivních médií, jako je bazénová voda s obsahem chloridu (max. 1,2 mg/l), dešťová voda, čistící, dezinfekční, mycí a prací prostředky a kondenzát z výhřevné techniky.
Odpadní voda je přiváděna potrubím do sběrné nádrže přečerpávací stanice. Jakmile dosáhne spínacího objemu, zapne se čerpadlo a vodu přečerpá do připojeného tlakového vedení. Po dosažení bodu vypnutí se čerpadlo opět vypne.
Při příliš vysoké úrovni hladiny se čerpadlo zapne a na stanici začne blikat výstražná LED kontrolka. Aktivuje se vnitřní zvukový alarm a výstup pro sběrné poruchové hlášení.
.png)
Na Vaše dotazy k produktům odpovídáme co nejrychleji, obvykle do 24 hodin.
Nenašli jste to, co jste chtěli vědět?