Nastavení ochrany soukromí na bola.cz
Nezbytné cookies: Nutné pro správné fungování webu. Tyto nelze deaktivovat.
Analytické cookies: Pomáhají nám porozumět, jak používáte náš web, což nám umožňuje jej vylepšovat. Patří sem Google Analytics.
Marketingové cookies: Používají se ke sledování návštěvníků napříč weby za účelem zobrazování relevantních reklam. Patří sem Google Ads a technologie Google Enhanced Conversions.
Osobní odběr zboží: Severní 276, Jinočany - Kontakt
Máte dotaz? +420 311 257 435
Plně zaplavitelné kompaktní zařízení na přečerpávání odpadní vody jako zařízení se samostatným čerpadlem s plynotěsnou… Více informací
Tento produkt již není v nabídce, protože byl nahrazen novým modelem.
Zobrazit nový model| Dopravní výška čerpadla | 6 m |
| Maximální teplota | 60 °C |
| Napájení | 230 VAC |
| Objem | 45 l |
| Počet vstupů | 1 |
| Průtok čerpadla | 9,8 l/s |
| Rozměr | 799x500x300 |
| Hmotnost | 52.00 kg |
Návod ke stažení
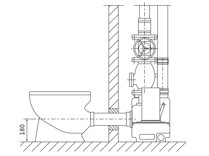
Stáhnout PDFPlně zaplavitelné kompaktní zařízení na přečerpávání odpadní vody jako zařízení se samostatným čerpadlem s plynotěsnou a vodotěsnou sběrnou nádrží se zešikmeným sběrným prostorem pro bezpečný provoz bez usazenin, volně volitelnými přítoky, s měřením hladiny plovákovým spínačem a trojfázovým nebo střídavým motorem s termickou kontrolou motoru.
Odčerpávání odpadní vody bez obsahu i s obsahem fekálií, sloužící k bezpečnému odvodnění odtokových míst v budovách i na pozemcích pod úrovní zpětného vzdutí. Zařízení lze instalovat jak podle všeobecně platných pravidel v souladu s normou DIN 1986, tak také, díky svému obzvláště kompaktnímu provedení, prostorově úspornou formou za čelní stěnu.
Na Vaše dotazy k produktům odpovídáme co nejrychleji, obvykle do 24 hodin.
O nákupu
O společnosti
Kontakt
Doprava


Platba
Copyright © 2026 BOLA spol s.r.o.
Bola.cz


Nenašli jste to, co jste chtěli vědět?